Espaçoso Apartamento T3 rés-do-chão - Lourinhã
Descrição
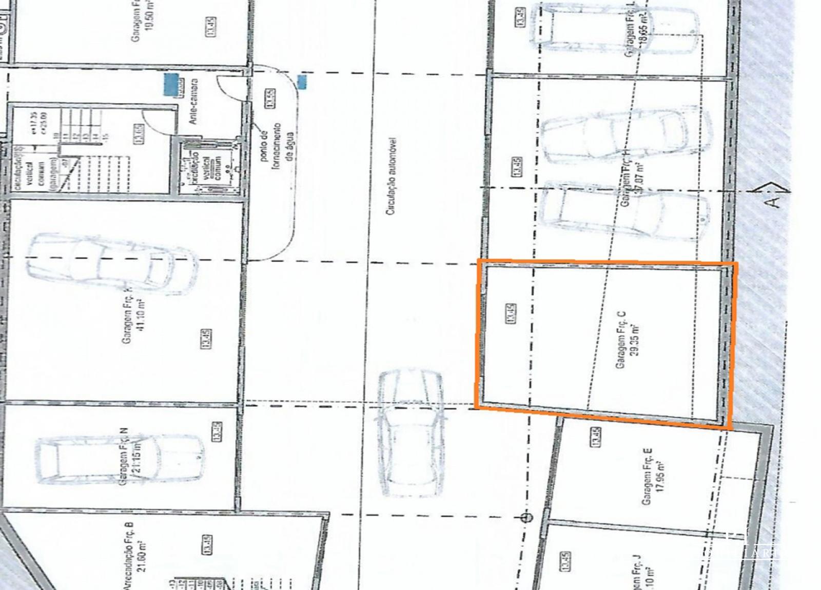
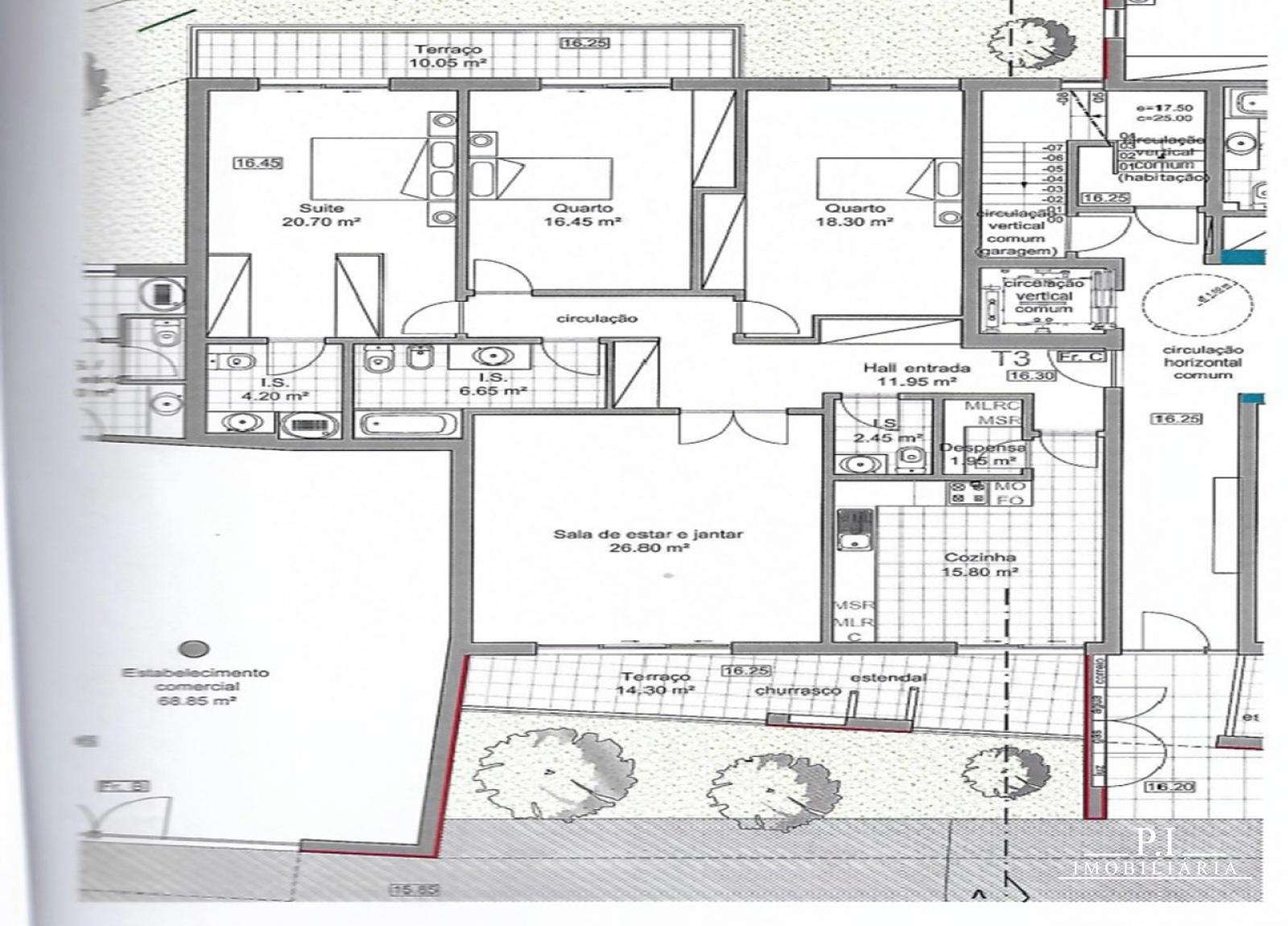
Espaçoso Apartamento T3 situado na Lourinhã ao nível do rés-do-chão, com uma área bruta de 147m2, e garagem fechada com 30m2.
O apartamento é constituído por 1 suite, dois quartos, duas casas-de-banho, cozinha, sala de estar, e um terraço com churrasqueira.
Equipado com Ar-Condicionado, aspiração central, termoacumulador, instalação de som ambiente, instalação de alarme, vídeo porteiro, e cozinha equipada.
Áreas das divisões:
Suite: 20.70 m2 + wc: 4.20 m2
Quarto: 16.45 m2
Quarto: 18.30 m2
Hall: 11.95 m2
Wc: 6.65 m2
Wc: 2.45 m2
Sala: 26.80 m2
Cozinha: 15.80 m2
Terraço/Churrasqueira: 14.30 m2
Terraço: 10.05 m2
A curta proximidade de todo o tipo de comércio.
A poucos minutos das diversas praias do concelho da Lourinhã, e a 50 minutos do Aeroporto de Lisboa.
Spacious three bedroom apartment on the ground floor, located in Lourinhã, with a total area of 147m2, and a closed garage with 30m2.
The apartment is composed of 1 suite, two bedrooms, two bathrooms, kitchen, living room, and a terrace with grill.
It is also equipped with Air-conditioner, central suction, thermoaccumulator, ambient sound system, alarm system, video doorman system, and equipped kitchen appliances.
Divisions measurements:
Suite: 20.70 m2 wc: 4.20 m2
Bedroom: 16.45 m2
Bedroom: 18.30 m2
Hall: 11.95 m2
Wc: 6.65 m2
Wc: 2.45 m2
Living room: 26.80 m2
Kitchen: 15.80 m2
Terrace/Grill: 14.30 m2
Terrace: 10.05 m2
A few minutes from the various beaches of Lourinhã, and 50 minutes from Lisbon´s Airport.
P. I Imobiliária
Ref. nºPI50.
Localização
Outras Propriedades
Magnifica Villa com 5 Quartos - Piscina - a 10 km da Praia
Casalinhos das Oliveiras - Lourinhã
- T5
- 425 m2
- C